Обяви За нас Контакти
Продава 2-СТАЕН
град София, Център
190 000 €
371 607.70 лв.

(2 184 €, 4 271.53 лв./m2)
Цената е с включено ДДС
История на цената
Коригирана в 23:48 на 10 януари, 2026 год.
Обявата е посетена 530 пъти.
Площ:
87 m2
Етаж:
5-ти от 6
Газ:
НЕ
ТEЦ:
НЕ
Строителство:
Тухла, Ще бъде въведен в експлоатация 2026 г.

Описание на имота:


LUXIMMO FINEST ESTATES: www.luximmo.bg
Представяме за продажба двустаен апартамент в нова жилищна сграда с модерна визия, в един от перспективните райони, в широкия градски център на София.

В процес на строителство. Очакван Акт 16 - декември 2026 г.

Локация

Локацията на сградата е с отлично развита транспортна, социална, търговска и културна инфраструктура, което е ключов фактор при избора на жилище. В близост до метрото, ключови автобусни, тролейбусни и трамвайни линии, с бързи и удобни връзки към централните и периферни части на града. Районът предлага удобства като магазини, заведения, училища, банки, аптеки и културни институции, което го прави идеален както за живеене, така и за инвестиция.

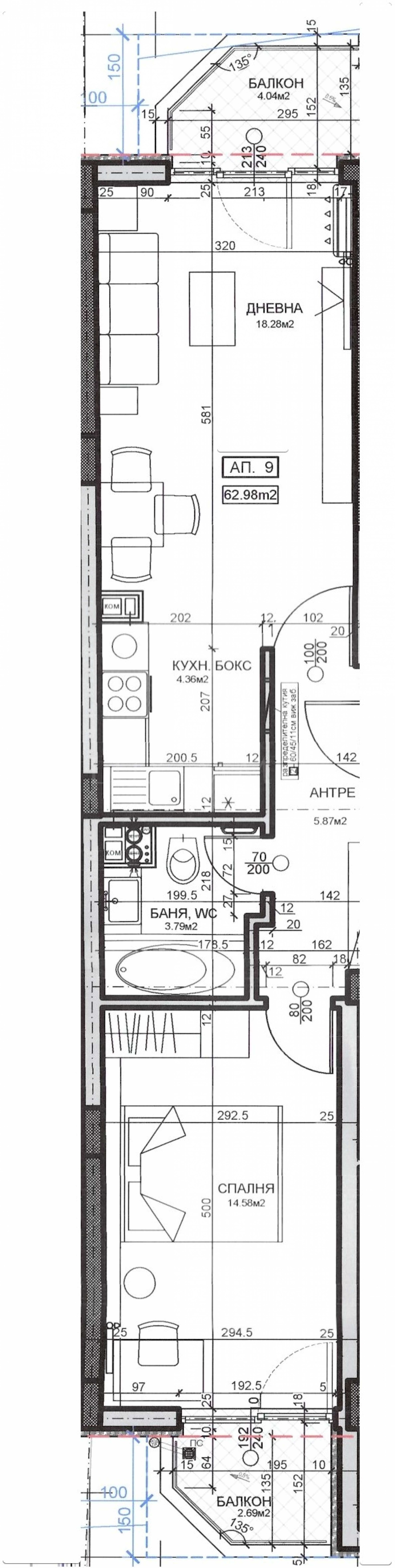
Имотът е с обща площ от 87,25 кв.м, разположен на 5-и етаж с изложение югозапад/североизток. Издава се в степен на завършеност по БДС, на шпакловка и замазка, качествено ново строителство.

Разпределение:
антре/коридор;
дневна с кухня;
спалня;
баня с тоалет;
две тераси.

Към жилището има прилежащо избено помещение с площ от 5,28 кв.м.

Допълнителни предимства
големи прозорци осигуряващи изобилие от естествена светлина;
висококачествената дограма с троен стъклопакет и прекъснат термомост;
отопление на ТЕЦ, гарантиращо комфорт и енергийна ефективност.

Има възможност за закупуване на закрито паркомясто допълнително.

Схема на плащане:
30% при подписване на предварителен договор;
30% при Акт 14;
30% при издаване на удостоверение по чл.181(груб строеж);
5% при Акт 15;
5% при разрешение за ползване.

Очакваме Вашето запитване

Ако желаете да организирате оглед на имот, който Ви интересува, или да посетите някой от нашите офиси, моля свържете се с нас. За да уговорите ден и час за среща или оглед, можете да се обадите на посочения в обявата телефон или да изпратите запитване чрез електронната поща. Нашият консултант ще Ви съдейства с всички необходими подробности и ще уговори удобно за Вас време.

Търсите подходящия за Вас имот?

Не ...

За повече информация свържете се с нас и цитирайте референтния номер на имота. Моля, кажете, че сте видeли обявата в този сайт.
Референтен номер: SOF-129478
Тел: 0882 639 881, 02 402 91 69
Отговорен брокер:Валентин Валентинов
Особености
Тухла
Асансьор
За контакт:
0882639881
Брокер:
Валентин Валентинов
0882 639 881
Още оферти от брокера: Продава | Дава под наем | Купува | Наема
Агенция:
ЛУКСИММО
02 9 11 55; 0883 888 888
ЛУКСИММО logo
Медал за прослужено време
В imot.bg от 2008 г.
luximmo.imot.bg
Адрес:
област София, гр. София, бул. 'Черни връх' 51-Г, етаж 7 (офис сграда Realtons Place)
http://www.luximmo.bg
ИЗПРАТИ ЗАПИТВАНЕ
ИЗПРАТИ ЗАПИТВАНЕТО

Продава 2-СТАЕН
град София, Център
Обява: 1b175153323537375

190 000 €
371 607.70 лв.
История на цената
(2 184 €, 4 271.53 лв./m2)

Цената е с включено ДДС
ЗАПАЗИ ОБЯВАТА

Местоположение: град София, Център

Допълнителни данни за имотите в района и сравнение с други райони

Покажи

Период

и 2 месеца

* Средните цени са определени чрез медианна стойност