Обяви За нас Контакти
Продава 2-СТАЕН
град София, Бояна
185 000 €
361 828.55 лв.

(2 434 €, 4 760.49 лв./m2)
Цената е без ДДС
История на цената
Коригирана в 11:47 на 29 септември, 2025 год.
Обявата е посетена 1193 пъти.
Площ:
76 m2
Етаж:
1-ви от 3
Газ:
НЕ
ТEЦ:
НЕ
Строителство:
Тухла, Въведен в експлоатация

Описание на имота:


LUXIMMO FINEST ESTATES: www.luximmo.bg
Представяме двустаен апартамент за продажба, в иновативен затворен комплекс с получен Акт 16 в кв. 'Бояна'.

Разположен в престижния квартал, този комплекс съчетава отлична локация, висококачествени материали и модерни технологии, което го прави идеален избор за хора, търсещи комфортен живот в уредена градска среда с близост до природата. Благодарение на удобния достъп до бул. 'България' и Околовръстния път, можете бързо да достигнете центъра на града, докато близостта до парк 'Витоша' осигурява чист въздух и красиви гледки.

Параметри на имота

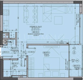
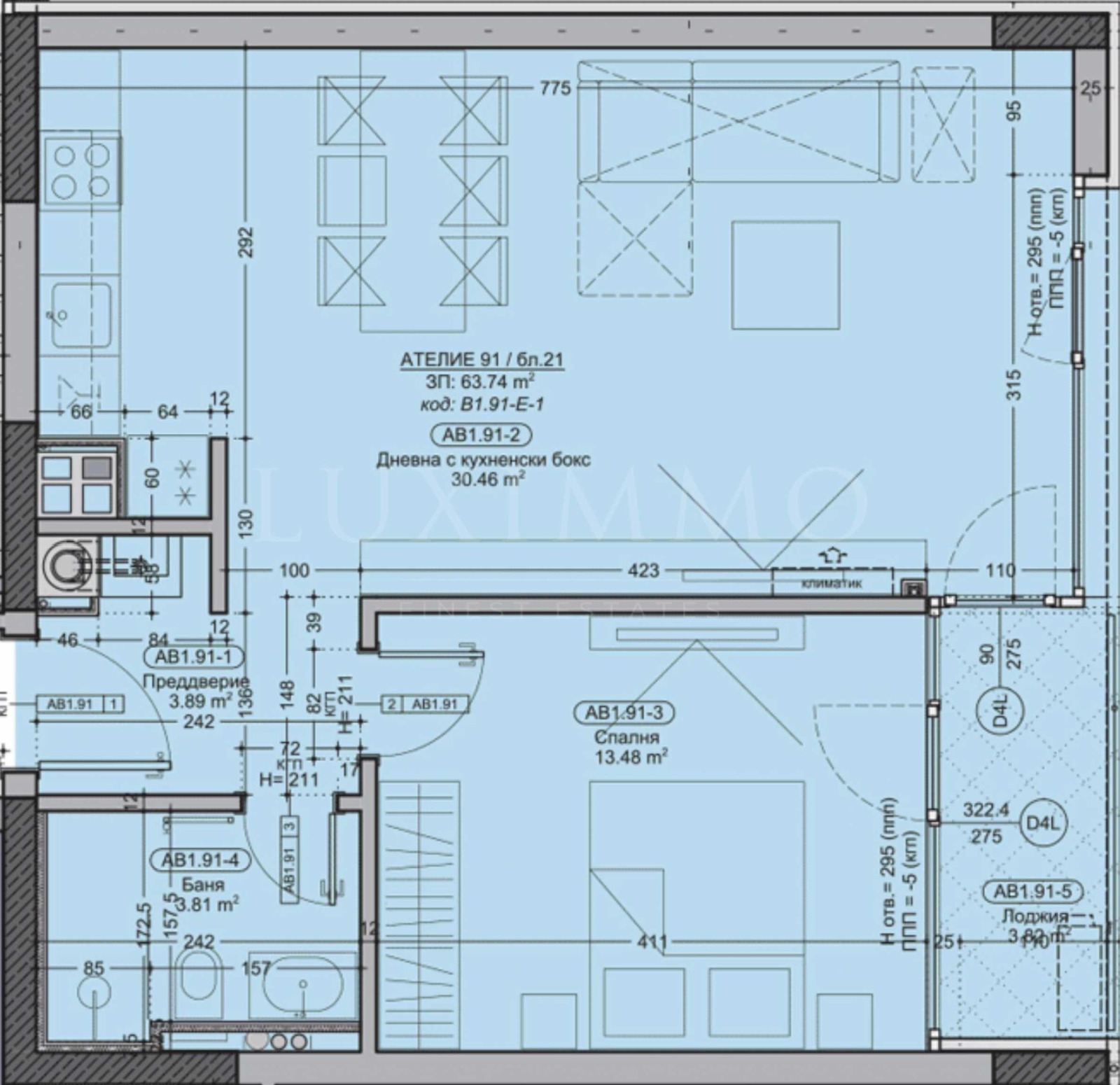
Апартаментът се намира на -1-ви етаж и има обща площ 76.34 кв.м, чиста площ - 63.74 кв.м. Състои се от антре, баня с тоалетна, спалня, всекидневна с кухня, тераса тип лоджия, с излаз от дневната и спалнята.

Предлага се в степен на завършеност по БДС:
подове с шумоизолация Copersound P-TEX;
ключове и контакти Legrand Valena Life;
PVC дограма с троен стъклопакет Kömmerling;
отопление на газ с котел Bosch и окабеляване за климатици;
входна врата Solid, модел iDoor 20-23;
тераса с мразоустойчив гранитогрес.
*Всеки апартамент в комплекса разполага със система Smart Home ready, позволяваща управление на осветлението, отоплението, климатизацията и сигурността чрез мобилно устройство.

Допълнително към имота може да се закупи подземно паркомясто на цена 68,454 лв. (35 000 евро) без ДДС.

За комплекса

Комплексът, състоящ се от 8 сгради с общо 204 апартамента и ателиета, е проектиран с функционални разпределения и панорамни гледки към града и планината. Зелените пространства между сградите са оформени с градини, алеи за разходки, зони за отдих и детски площадки. За допълнителен комфорт са предвидени фитнес, ресторант, контролиран достъп и жива охрана. Подземният паркинг предлага ...

Цената на имота е 185 000 евро / 361 828.55 лв. без ДДС или 222 000 евро / 434 194.26 лв. с ДДС. Данъчен кредит може да се ползва при определени условия.

За повече информация свържете се с нас и цитирайте референтния номер на имота. Моля, кажете, че сте видeли обявата в този сайт.
Референтен номер: SOF-133804
Тел: 0884 512 104, 02 451 81 62
Отговорен брокер:Евелина Царева
Виж всички обяви в luximmo.bazar.bg или тук
Особености
Тухла
Контрол на достъпа
С паркинг
За контакт:
0884512104
Брокер:
Евелина Царева
0884 512 104
Още оферти от брокера: Продава | Дава под наем | Купува | Наема
Агенция:
ЛУКСИММО
02 9 11 55; 0883 888 888
ЛУКСИММО logo
Медал за прослужено време
В imot.bg от 2008 г.
luximmo.imot.bg
Адрес:
област София, гр. София, бул. 'Черни връх' 51-Г, етаж 7 (офис сграда Realtons Place)
http://www.luximmo.bg
ИЗПРАТИ ЗАПИТВАНЕ
ИЗПРАТИ ЗАПИТВАНЕТО

Продава 2-СТАЕН
град София, Бояна
Обява: 1b175585320815807

185 000 €
361 828.55 лв.
История на цената
(2 434 €, 4 760.49 лв./m2)

Цената е без ДДС
ЗАПАЗИ ОБЯВАТА

Местоположение: град София, Бояна

Допълнителни данни за имотите в района и сравнение с други райони: Търсене в АРХИВ 2013 - 2025 г.











Добави/редактирай
вид имот и район
*Средните цени са определени чрез медиана стойност.