Обяви За нас Контакти
Продава 2-СТАЕН
град София, Малинова долина
157 070 €
307 202.22 лв.

(2 310 €, 4 517.97 лв./m2)
Цената е с включено ДДС
История на цената
Публикувана в 12:00 на 14 октомври, 2025 год.
Обявата е посетена 854 пъти.
Площ:
68 m2
Етаж:
Партер от 4
Газ:
НЕ
ТEЦ:
НЕ
Строителство:
Тухла, Ще бъде въведен в експлоатация 2027 г.

Описание на имота:


LUXIMMO FINEST ESTATES: www.luximmo.bg
Представяме двустаен апартамент с двор в нов жилищен комплекс, разположен в столичния квартал 'Малинова долина' един от най-бързо развиващите се райони в София. Комплексът се състои от две самостоятелни сгради с общо три секции и е проектиран с внимание към детайла, така че да съчетае съвременна архитектура, функционални жилища и високо ниво на комфорт.

Локацията осигурява едновременно тишина и спокойствие, както и лесен достъп до ключови точки в града. Близостта до бул. Симеоновско шосе и Околовръстен път позволява бързо придвижване към центъра на София, Бизнес Парк София, основни търговски и административни зони, както и към изходите на града. В района се намират множество супермаркети, магазини, училища, детски градини и заведения за хранене, които напълно удовлетворяват нуждите на съвременния градски живот.

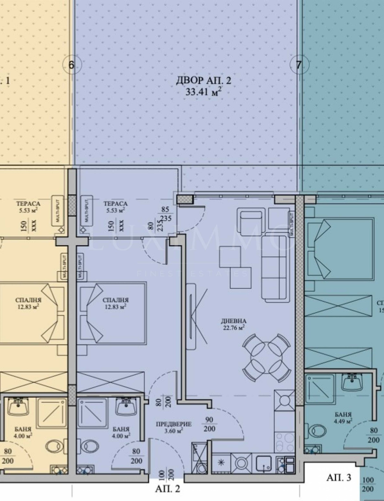
Двустайният апартамент се намира на партерен етаж в 4-етажна сграда. Жилището е с обща площ 68.06 кв. м (застроена площ - 55.64 кв. м и общи части - 12.42 кв. м).

Разпределение:
хол с кухненски бокс;
спалня;
баня с тоалетна;
балкон;
двор - 33.41 кв.м.

Комплексът предлага разнообразие от апартаменти от компактни и функционални жилища до просторни семейни домове с добре организирани вътрешни разпределения. Особено предимство имат апартаментите на приземно ниво, които разполагат със собствени дворни пространства удобство, което рядко се среща в съвременната градска среда. Те предоставят възможност за обособена градина, детски кът или зона за отдих.

Подземният паркинг с вътрешни паркоместа и автоматични гаражни врати тип летящо крило осигурява безпроблемно и сигурно паркиране. Пространствата са завършени със шлайфан бетон, модерна вентилационна система, електроинсталация и маркировка, изпълнени по проект.

Живущите в комплекса ще се радват на спокойствие, сигурност и удобство, благодарение на контролиран достъп чрез автоматична бариера, домофонна система и видеонаблюдение. Този ...

За повече информация свържете се с нас и цитирайте референтния номер на имота. Моля, кажете, че сте видeли обявата в този сайт.
Референтен номер: SOF-135087
Тел: 0882 817 584, 02 425 69 45
Отговорен брокер:Александра Мешева
Виж всички обяви в luximmo.bazar.bg или тук
Особености
Тухла
Асансьор
С гараж
С паркинг
Контрол на достъпа
За контакт:
0882817584
Брокер:
Александра Мешева
0882 817 584
Още оферти от брокера: Продава | Дава под наем | Купува | Наема
Агенция:
ЛУКСИММО
02 9 11 55; 0883 888 888
ЛУКСИММО logo
Медал за прослужено време
В imot.bg от 2008 г.
luximmo.imot.bg
Адрес:
област София, гр. София, бул. 'Черни връх' 51-Г, етаж 7 (офис сграда Realtons Place)
http://www.luximmo.bg
ИЗПРАТИ ЗАПИТВАНЕ
ИЗПРАТИ ЗАПИТВАНЕТО

Продава 2-СТАЕН
град София, Малинова долина
Обява: 1b176043244587640

157 070 €
307 202.22 лв.
История на цената
(2 310 €, 4 517.97 лв./m2)

Цената е с включено ДДС
ЗАПАЗИ ОБЯВАТА

Местоположение: град София, Малинова долина

Допълнителни данни за имотите в района и сравнение с други райони: Търсене в АРХИВ 2013 - 2025 г.











Добави/редактирай
вид имот и район
*Средните цени са определени чрез медиана стойност.