Обяви За нас Контакти
Продава 2-СТАЕН
град София, Кръстова вада
210 500 €
411 702.22 лв.

(2 567 €, 5 020.62 лв./m2)
Цената е без ДДС
История на цената
Публикувана в 12:00 на 19 февруари, 2026 год.
Обявата е посетена 579 пъти.
Площ:
82 m2
Етаж:
3-ти от 5
Газ:
НЕ
ТEЦ:
НЕ
Строителство:
Тухла, Ще бъде въведен в експлоатация 2027 г.

Описание на имота:


LUXIMMO FINEST ESTATES: www.luximmo.bg
Екслузивно представяме за продажба апартамент (ап. 12) в модерна градска резиденция с отличителен дизайн разположена в престижната южна част на София. Тя съчетава елегантна архитектура, премиум материали и съвременни технологии.

Сградата се намира в престижната южна част на столицата в непосредствена близост до Зоологическата градина, само на 950 м от Paradise Center и метростанция Витоша . Разположена на тиха вътрешна улица, сградата осигурява уединение и сигурност, съчетани с бърза връзка през новия булевард Филип Кутев към бул. Черни връх и Симеоновско шосе. Районът съчетава тишина, отлична инфраструктура и бърз достъп до ключови точки на града.

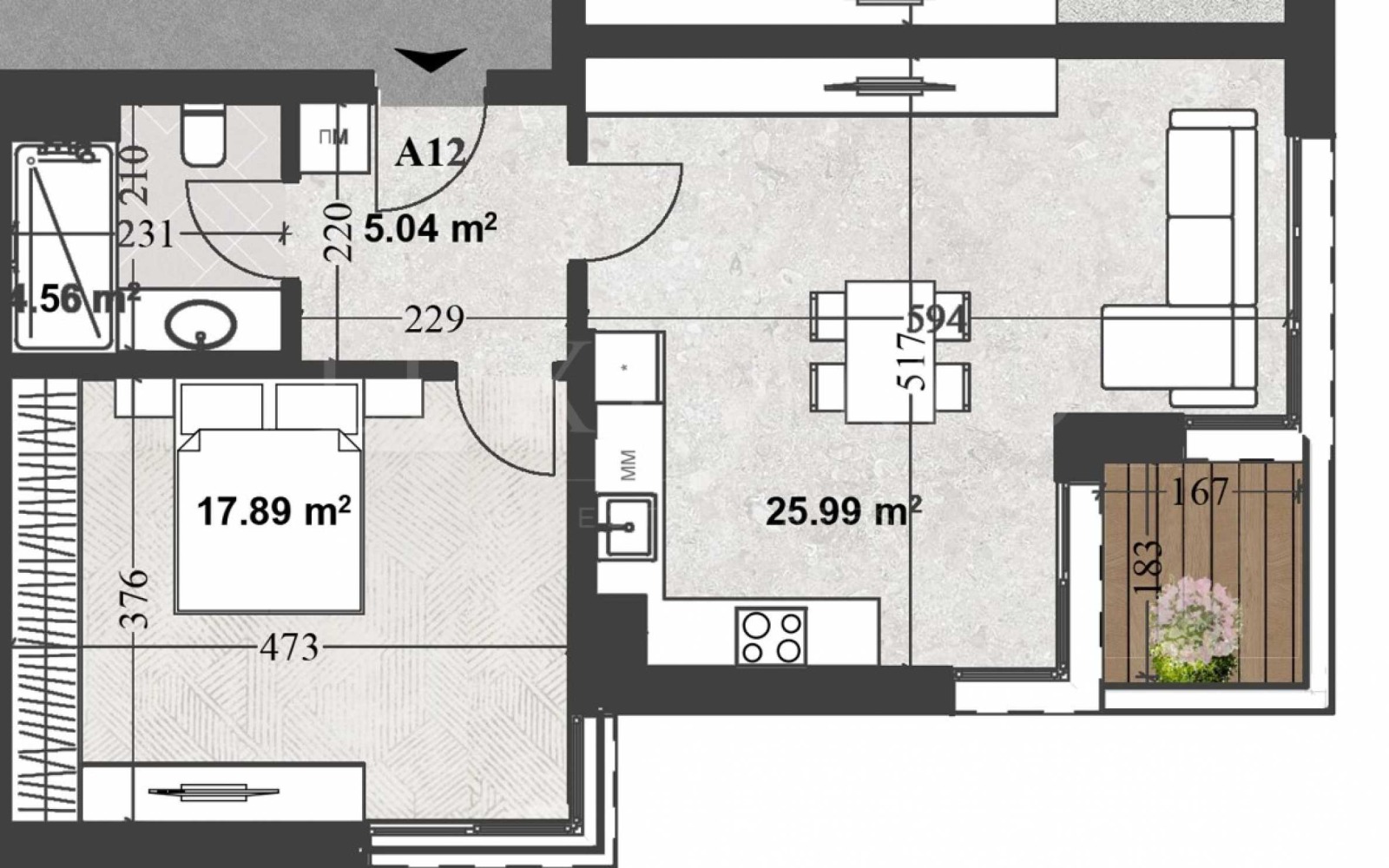
Апартаментът (ап. 12) е ситуиран на трети етаж с обща площ 82.98 кв.м и има следното разпределение:
коридор;
всекидневна с кухня и кът за хранене,
спалня;
баня с тоалетна;
лоджия.

Сградата е с пет надземни етажа и един подземен. На подземния са разположени гаражи, паркоместа и мазета. На останалите пет жилищни етажа са разположени 14 апартамента от тип двустайни, тристайни и четиристайни.

Имотите съчетават светли пространства, изчистени форми и усещане за спокойствие всичко е проектирано с внимание към детайла и с мисъл за онези, които ценят качеството и модерния начин на живот. Иновативна концепция, съчетаваща модерна архитектура, връзка с природата и новите технологии.

Модерно и качествено строителство, много висок стандарт на качество на използваните материали.

Технически характеристики:

Енергиен клас А - Сградата е проектирана с висока енергийна ефективност, осигуряваща ниско енергопотребление и оптимални разходи за отопление и охлаждане за по-устойчив и комфортен начин на живот.
Фотоволтаична система - Изградена система за захранване на ...

Цената на имота е 210 500 евро / 411 702.22 лв. без ДДС или 252 600 евро / 494 042.66 лв. с ДДС. Данъчен кредит може да се ползва при определени условия.

За повече информация свържете се с нас и цитирайте референтния номер на имота. Моля, кажете, че сте видeли обявата в този сайт.
Референтен номер: SOF-137980
Тел: 0885 187 241, 02 445 68 64
Отговорен брокер:Светлана Динер
Без комисиона от купувача
Особености
Тухла
Асансьор
Интернет връзка
За контакт:
0885187241
Брокер:
Светлана Динер
0885 187 241
Още оферти от брокера: Продава | Дава под наем | Купува | Наема
Агенция:
ЛУКСИММО
02 9 11 55; 0883 888 888
ЛУКСИММО logo
Медал за прослужено време
В imot.bg от 2008 г.
luximmo.imot.bg
Адрес:
област София, гр. София, бул. 'Черни връх' 51-Г, етаж 7 (офис сграда Realtons Place)
http://www.luximmo.bg
ИЗПРАТИ ЗАПИТВАНЕ
ИЗПРАТИ ЗАПИТВАНЕТО

Продава 2-СТАЕН
град София, Кръстова вада
Обява: 1b177149525531627

210 500 €
411 702.22 лв.
История на цената
(2 567 €, 5 020.62 лв./m2)

Цената е без ДДС
ЗАПАЗИ ОБЯВАТА

Местоположение: град София, Кръстова вада

Допълнителни данни за имотите в района и сравнение с други райони

Покажи

Период

и 4 месеца

* Средните цени са определени чрез медианна стойност