Обяви 0 За нас Контакти
Продава 3-СТАЕН
град София, Бояна
336 258 €
657 663.48 лв.

(2 712 €, 5 304.21 лв./m2)
Цената е без ДДС
История на цената
Коригирана в 12:15 на 16 април, 2026 год.
Обявата е посетена 1791 пъти.
Площ:
124 m2
Етаж:
1-ви от 4
Газ:
ДА
ТEЦ:
НЕ
Строителство:
Тухла, Въведен в експлоатация

Описание на имота:


LUXIMMO FINEST ESTATES: www.luximmo.bg
Представяме просторен тристаен апартамент за продажба в иновативен комплекс с получен Акт 16 в кв. 'Бояна'.

Разположен в престижния квартал, този комплекс съчетава отлична локация, висококачествени материали и модерни технологии, което го прави идеален избор за хора, търсещи комфортен живот в уредена градска среда с близост до природата. Благодарение на удобния достъп до бул. 'България' и Околовръстния път, можете бързо да достигнете центъра на града, докато близостта до парк 'Витоша' осигурява чист въздух и красиви гледки.

Параметри на имота

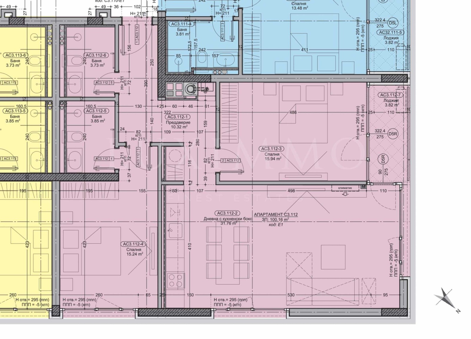
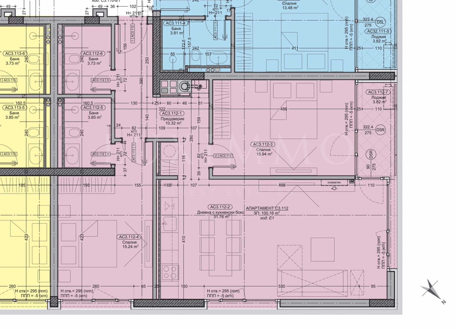
Апартаментът се намира на 1-ви етаж, с изложение изток/север/запад и има обща площ 124.54 кв.м. Състои се от антре, две бани с тоалетни, две спални, всекидневна с кухня, тераса тип лоджия, с излаз от дневната и една от спалните.

Предлага се в степен на завършеност по БДС:
подове с шумоизолация Copersound P-TEX;
ключове и контакти Legrand Valena Life;
PVC дограма с троен стъклопакет Kömmerling;
отопление на газ с котел Bosch и окабеляване за климатици;
входна врата Solid, модел iDoor 20-23;
тераса с мразоустойчив гранитогрес.

*Всеки апартамент в комплекса разполага със система Smart Home ready, позволяваща управление на осветлението, отоплението, климатизацията и сигурността чрез мобилно устройство.

Допълнително към имота може да се закупи подземно паркомясто на цена 27 000 евро без ДДС.

За комплекса

Комплексът, състоящ се от 8 сгради с общо 204 апартамента и ателиета, е проектиран с функционални разпределения и панорамни гледки към града и планината. Зелените пространства между сградите са оформени с градини, алеи за разходки, зони за отдих и детски площадки. За допълнителен комфорт са предвидени фитнес, ресторант, контролиран достъп и жива охрана. Подземният паркинг предлага удобни паркоместа и ...

Цената на имота е 336 258 евро / 657 663.48 лв. без ДДС или 403 509 евро / 789 196.18 лв. с ДДС. Данъчен кредит може да се ползва при определени условия.

За повече информация свържете се с нас и цитирайте референтния номер на имота. Моля, кажете, че сте видeли обявата в този сайт.
Референтен номер: SOF-128399
Тел: 0988 154 582, 02 451 47 74
Отговорен брокер:Яна Гърчанова
Особености
Тухла
Асансьор
Контрол на достъпа
За контакт:
0988154582
Брокер:
Яна Гърчанова
0988 154 582
Още оферти от брокера: Продава | Дава под наем | Купува | Наема
Агенция:
ЛУКСИММО
02 9 11 55; 0883 888 888
ЛУКСИММО logo
Медал за прослужено време
В imot.bg от 2008 г.
luximmo.imot.bg
Адрес:
област София, гр. София, бул. 'Черни връх' 51-Г, етаж 7 (офис сграда Realtons Place)
http://www.luximmo.bg
ИЗПРАТИ ЗАПИТВАНЕ
ИЗПРАТИ ЗАПИТВАНЕТО

Продава 3-СТАЕН
град София, Бояна
Обява: 1c176166727106436

336 258 €
657 663.48 лв.
История на цената
(2 712 €, 5 304.21 лв./m2)

Цената е без ДДС
ЗАПАЗИ ОБЯВАТА

Местоположение: град София, Бояна

Допълнителни данни за имотите в района и сравнение с други райони

Покажи

Период

и 5 месеца

* Средните цени са определени чрез медианна стойност