Обяви За нас Контакти
Продава 4-СТАЕН
област София, к.к. Боровец
При запитване
История на цената
Коригирана в 14:31 на 27 октомври, 2025 год.
Обявата е посетена 3549 пъти.
Площ:
120 m2
Етаж:
1-ви от 5
Газ:
НЕ
ТEЦ:
НЕ
Строителство:
ЕПК, Ще бъде въведен в експлоатация 2026 г.

Описание на имота:


LUXIMMO FINEST ESTATES: www.luximmo.bg
Ексклузивно представяме четиристаен апартамент за продажба в 7 Angels - луксозен жилищно-ваканционен комплекс, разположен сред вековните борови гори на величествената Рила планина. Проектът ще бъде изпълнен без компромиси и има амбицията да се превърне в една от най-реномираните и престижни резиденции в аристократичния планински курорт на България. Местоположението е с бърз достъп до центъра на курорта, на 900 м от кабинковия лифт и само на 50 м от 800-метрова ски писта за начинаещи.
Етапи на строителство:
Старт на строителството: 08.2025 г.
Завършване: декември 2026 г.
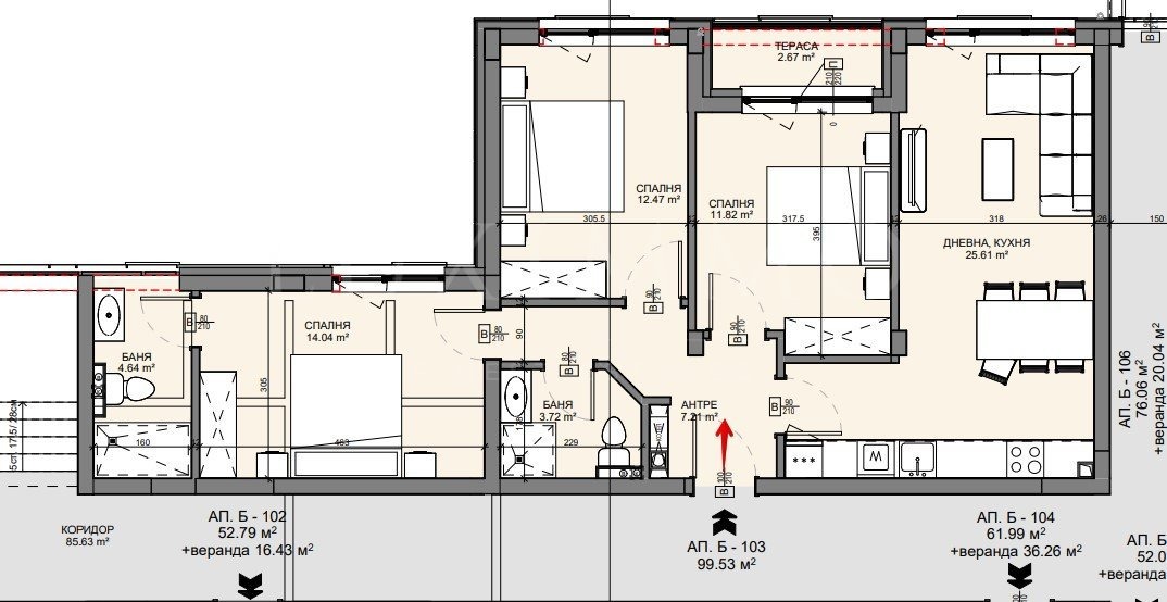
Имотът е ситуиран на 1-ви етаж и предлага 120.49 кв.м обща площ (нетна площ 99.36 кв.м + общи части 21.13 кв.м). Състои се от антре, всекидневна с кухненска част, спалня със собствена баня с тоалетна, още две спални, втора баня с тоалетна, тераса. Предлага се в степен на завършване 'до ключ' с готови настилки (паркет), стени, завършени и оборудвани бани; дървена, трислойна дограма, немски профил, с троен стъклопакет и алуминиева капачка, предпазваща дървото от студ и слънце за да служи дълги години; блиндирани входни врати и MDF интериорни врати, инсталирани радиатори и система Smart-home, включена в цената. Отоплението е предвидено с индивидуално парно на газ и радиатори.

Комплексът е планиран в три секции две жилищни сгради и ресторант между тях, който ги свързва с топла връзка. Планирани са 58 имота с възможност за обединяване - студиа и апартаменти с една, две и три спални, някои от които разполагат с градински тераси, а други са от типа мезонет.

На разположение ще има ресторант от премиален бранд, италианска кафе-сладкарница, скиорна, ултрамодерен уелнес и СПА център, който включва вътрешни и външни сауни, малък басейн с дифузери, парна баня и стаи за масаж, както и фитнес център с Kettler и Tehnogym фитнес уреди.

Надземни паркоместа - 8000 Евро без ДДС, подземни - 12000 Евро без ДДС. ...

За повече информация свържете се с нас и цитирайте референтния номер на имота. Моля, кажете, че сте видeли обявата в този сайт.
Референтен номер: STO 117959
Тел: 0884 657 885, 02 423 19 62
Отговорен брокер:Яна Янчева
Без комисиона от купувача
Виж всички обяви в luximmo.bazar.bg или тук
Особености
ЕПК
Асансьор
С гараж
С паркинг
Контрол на достъпа
За контакт:
0884657885
Брокер:
Яна Янчева
0884 657 885
Още оферти от брокера: Продава | Дава под наем | Купува | Наема
Агенция:
ЛУКСИММО
02 9 11 55; 0883 888 888
ЛУКСИММО logo
Медал за прослужено време
В imot.bg от 2008 г.
luximmo.imot.bg
Адрес:
област София, гр. София, бул. 'Черни връх' 51-Г, етаж 7 (офис сграда Realtons Place)
http://www.luximmo.bg
ИЗПРАТИ ЗАПИТВАНЕ
ИЗПРАТИ ЗАПИТВАНЕТО

Продава 4-СТАЕН
област София, к.к. Боровец
Обява: 1d170325468935392

При запитване
История на цената

ЗАПАЗИ ОБЯВАТА