Обяви 0 За нас Контакти
Продава КЪЩА
град София, с. Житен
256 500 €
501 670.40 лв.

(1 623 €, 3 174.31 лв./m2)
Цената е с включено ДДС
История на цената
Коригирана в 13:21 на 8 май, 2026 год.
Обявата е посетена 24 пъти.
Площ:
158 m2
Двор:
--- m2
Газ:
НЕ
ТEЦ:
НЕ
Строителство:
Тухла, Въведен в експлоатация 2026 г.

Описание на имота:


LUXIMMO FINEST ESTATES: www.luximmo.bg
Представяме Ви нов модерен комплекс от еднофамилни къщи в с. Житен проект, създаден за хора, които търсят баланс между динамиката на града и спокойствието на собствен дом със зелено пространство. Локацията предлага тишина, чист въздух и усещане за уединение, като същевременно осигурява бърз и удобен достъп до София ключово предимство за съвременния активен начин на живот. Очакваното въвеждане в експлоатация (Акт 16) е в края на април 2027 г.

Комплексът включва общо 15 къщи 2 самостоятелни, 5 редови и 8 тип близнак създадени с фокус върху функционалност, простор и личен комфорт. Към момента са налични 13 имота, като интересът вече е заявен чрез реализирани продажби на една редова къща и една къща тип близнак. Площите варират от 158,53 кв.м до 269,65 кв.м, което позволява избор според нуждите на всяко семейство от практично и компактно разпределение до просторен семеен дом. Всички имоти се издават по БДС със самостоятелни, озеленени и оградени дворове ценен актив, който добавя усещане за лична територия, спокойствие и възможност за индивидуално оформление.

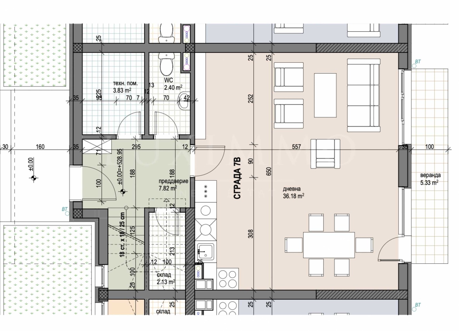
Конкретната оферта е за редова къща 2А.
Обща площ на къщата е 158.53 кв.м., двор 112.78 кв.м. и две външни паркоместа към нея.

Имота е със следното разпределение:
коридор, предверие, слад, тоалетна, дневна с кухненски бокс, стълбище
гараж, веранда, 3бр. спални, гардероб, 2бр. баня с тоалетна и тераса.

Обявената цена е с включен ДДС!

Инвеститорът предлага гъвкави схеми на плащане, съобразени с различните финансови стратегии на купувачите. Възможностите включват минимално първоначално участие и финализиране на плащането след достигане на ключови строителни етапи, както и вариант с отложено основно плащане след въвеждане в експлоатация. Последният предоставя допълнително удобство при планиране на финансирането, като е съпроводен с корекция в цената, отразяваща увеличената инвестиционна сигурност.

Къщите са проектирани и ...

За повече информация свържете се с нас и цитирайте референтния номер на имота. Моля, кажете, че сте видeли обявата в този сайт.
Референтен номер: Kbs 137743
Тел: 0882 812 701, 02 401 80 25
Отговорен брокер:Петър Цоков
Без комисиона от купувача
Особености
Тухла
С паркинг
За контакт:
0882812701
Брокер:
Петър Цоков
0882 812 701
Още оферти от брокера: Продава | Дава под наем | Купува | Наема
Агенция:
ЛУКСИММО
02 9 11 55; 0883 888 888
ЛУКСИММО logo
Медал за прослужено време
В imot.bg от 2008 г.
luximmo.imot.bg
Адрес:
област София, гр. София, бул. 'Черни връх' 51-Г, етаж 7 (офис сграда Realtons Place)
http://www.luximmo.bg
ИЗПРАТИ ЗАПИТВАНЕ
ИЗПРАТИ ЗАПИТВАНЕТО

Продава КЪЩА
град София, с. Житен
Обява: 1j177048000201910

256 500 €
501 670.40 лв.
История на цената
(1 623 €, 3 174.31 лв./m2)

Цената е с включено ДДС
ЗАПАЗИ ОБЯВАТА

Местоположение: град София, с. Житен

Допълнителни данни за имотите в района и сравнение с други райони

Покажи

Период

и 5 месеца

* Средните цени са определени чрез медианна стойност