Обяви За нас Контакти
Продава ПАРЦЕЛ
град София, с. Бистрица
320 000 €
625 865.60 лв.

(498 €, 974.00 лв./m2)
Цената е с включено ДДС
История на цената
Публикувана в 12:00 на 2 юли, 2025 год.
Обявата е посетена 2173 пъти.
Площ:
643 m2
Ток:
ДА
Вода:
ДА

Описание на имота:


LUXIMMO FINEST ESTATES: www.luximmo.bg
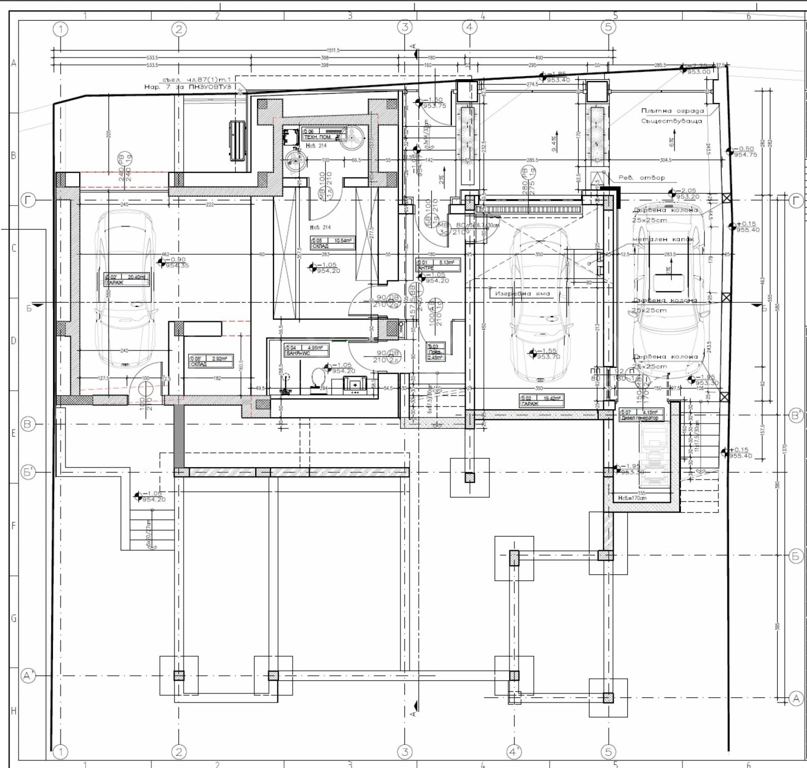
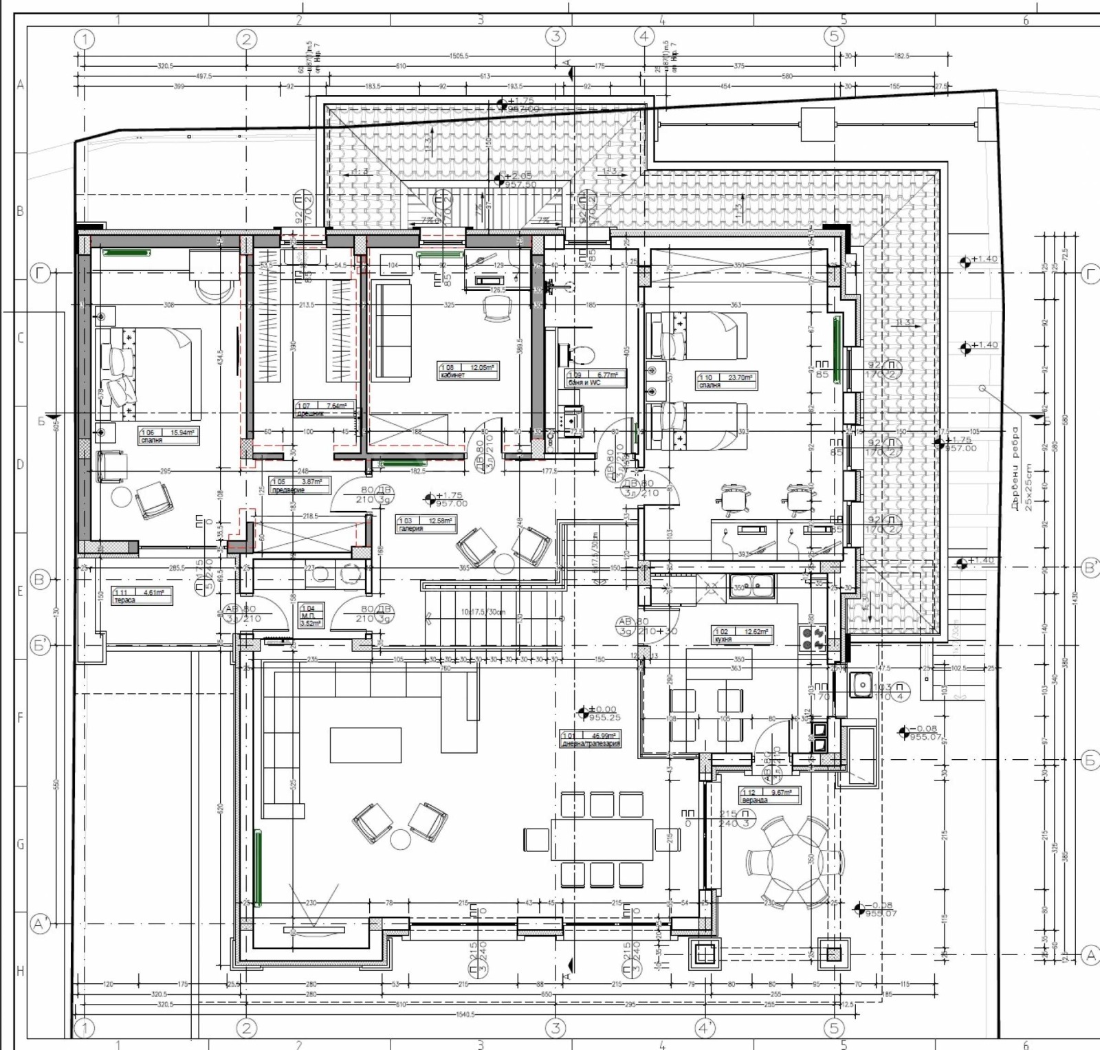
Парцел 643 кв. м с одобрен и съгласуван проект за еднофамилна къща с РЗП ~ 260 кв. м на два етажа, с действащо разрешение за строеж и открита строителна площадка. Намира се в с. Бистрица, София, в тиха зона с целогодишен достъп и отлично поддържана инфраструктура.

Проектът включва:
3 спални
обширна всекидневна
отделна кухня с трапезария (възможност за обединяване в open space)
2 бани с тоалетни
мокро помещение
сервизно-складово помещение
2 закрити гаража + външно паркомясто

Къщата е позиционирана в северната част на парцела, като се оформя слънчев южен двор с площ около 320 м² идеален за зеленина, детска зона или спокойна веранда.

Готовност за незабавно строителство:
Нова подпорна стена по двете дълги страни на имота
Теренът е подготвен до кота 0
Имотът разполага с действащи партиди за вода и електричество, както и газ на граница

Най-ценното природата около Вас:
Имотът граничи с Янчовска река, а вечер се чува единствено нейният ромон създавайки усещане за пълно уединение, покой и баланс. От парцела се открива красива панорамна гледка, а атмосферата е изпълнена с чист въздух, зеленина и тишина.

Идеално място за изграждане на дом, в който да се живее не просто да се притежава.

За повече информация свържете се с нас и цитирайте референтния номер на имота. Моля, кажете, че сте видeли обявата в този сайт.
Референтен номер: SOF-132452
Тел: 0886 068 202, 02 404 89 82
Отговорен брокер:Мирослав Иванов
За контакт:
0886068202
Брокер:
Мирослав Иванов
0886 068 202
Още оферти от брокера: Продава | Дава под наем | Купува | Наема
Агенция:
ЛУКСИММО
02 9 11 55; 0883 888 888
ЛУКСИММО logo
Медал за прослужено време
В imot.bg от 2008 г.
luximmo.imot.bg
Адрес:
област София, гр. София, бул. 'Черни връх' 51-Г, етаж 7 (офис сграда Realtons Place)
http://www.luximmo.bg
ИЗПРАТИ ЗАПИТВАНЕ
ИЗПРАТИ ЗАПИТВАНЕТО

Продава ПАРЦЕЛ
град София, с. Бистрица
Обява: 1r175144680760586

320 000 €
625 865.60 лв.
История на цената
(498 €, 974.00 лв./m2)

Цената е с включено ДДС
ЗАПАЗИ ОБЯВАТА

Местоположение: град София, с. Бистрица

Допълнителни данни за имотите в района и сравнение с други райони

Покажи

Период

и 4 месеца

* Средните цени са определени чрез медианна стойност